X
快速聯絡
諮詢專線:
線上諮詢:
或由專員為您服務,請留下
快速
聯絡

石牌國中小 店辦皆宜

台北市北投區致遠二路113巷9號1樓

  • Uhomes
  • Uhomes
  • Uhomes
  • Uhomes
  • Uhomes
  • Uhomes
  • Uhomes
  • Uhomes
  • Uhomes
  • Uhomes
  • Uhomes
  • Uhomes
  • 相片
  • 地圖
  • 建物平面圖
  • 法院拍賣公告
公告底價
2549萬
開標結果
拍定3082萬
  • 公告坪數
    44.89
  • 每坪單價
    56.78

    每坪單價以法院公告坪數概算,詳細拆算方式請洽專員。

  • 開 標 日
    2024/05/20 14:30
  • 拍  次
    2拍
  • 點交情形
    點交
  • 保 證 金
    510萬
聯 絡 人
沈專員
調整字級

物件資料
公 告 坪 數
44.89
主 建 坪 數
29.73
附 屬 坪 數
3.63
公 設 坪 數
4.50
其 他 坪 數
增 建 坪 數
7.03
土 地 坪 數
12.77
車 位 坪 數
車 位 屬 性
-
捷 運/火 車
石牌站
房 屋 類 型
店面
結   構
RC
屋   齡
39
樓 層 別
1/5
房 屋 用 途
商業用
會員資訊

請登入會員查看

公告資料
拍 賣 地 點
臺灣士林地方法院
案   號
112年度司執助字第9773號
拍 賣 範 圍
全部
拍 賣 原 因
分割遺產
抵 押 權
無抵押權設定
筆   錄
使用情形
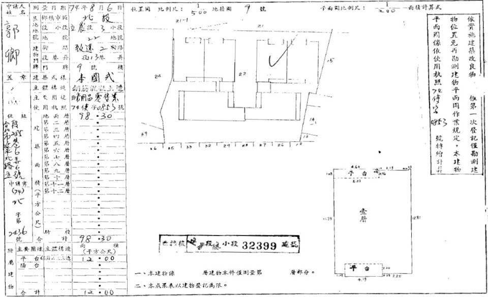
㈠32399、32646建號建物拍定後點交。
㈡民國112年9月22日、10月26日現場查封及執行時,債權人在場表示建物目前為空屋,無人居住使用,經檢視發現建物有內梯可通往大樓地下室,該地下室另有可通往大樓公用梯之門,該扇門目前已封住,惟現在實際情形如何,仍請應買人自行查明注意。上開地下室建物非本件拍賣範圍,且共有人間有無分管契約及契約內容為何不明。
㈢32646建號建物係未登記建物,現場執行時,地政人員指稱32646建號建物為32399建號建物前後之增建,與主建物內部相通,且無獨立出入口。又本件拍賣係以建物現況拍賣,當事人及拍定人均不得以面積不符,請求增減價金。臺北市政府都市發展局於112年11月13日函覆稱:32646建號建物係位於法定空地之水平增建違章建築,屬既存違章建築,列入分類分期處理,列管拆除等語。拆除風險請應買人自行注意,拍定後無法以權利移轉證書辦理建物登記。

本件係變價分割遺產執行事件,債權人及債務人(即各共有人)均得參加應買;且拍定後,除拍定人為共有人外,依民法第830條準用第824條第7項規定,公同共有人有優先承買權,有二人以上願優先承買者,以抽籤定之。如就優先承買權存否爭執並經起訴,須待訴訟確定,始依訴訟結果核發權利移轉證書。
內容展開

本物件資訊如有遺漏,以法院公告為準。

地圖
公 告 底 價
2549
開 標 結 果
拍定3082萬
  • 公告坪數
    44.89
  • 每坪單價
    56.78

    每坪單價以法院公告坪數概算,詳細拆算方式請洽專員。

  • 開 標 日
    2024/05/20 14:30
  • 拍  次
    2拍
  • 點交情形
    點交
  • 保 證 金
    510萬
聯 絡 人
沈專員

留 言