X
快速聯絡
諮詢專線:
線上諮詢:
或由專員為您服務,請留下
快速
聯絡

亞昕平方 頭前重劃區雙捷運

新北市新莊區中原東路198之1號18樓

  • Uhomes
  • Uhomes
  • Uhomes
  • Uhomes
  • Uhomes
  • Uhomes
  • Uhomes
  • Uhomes
  • Uhomes
  • Uhomes
  • Uhomes
  • Uhomes
  • 相片
  • 地圖
  • 建物平面圖
  • 法院拍賣公告
公告底價
1920萬
開標結果
拍定2442萬
  • 公告坪數
    57.39
  • 每坪單價
    33.45

    每坪單價以法院公告坪數概算,詳細拆算方式請洽專員。

  • 開 標 日
    2024/05/15 10:30
  • 拍  次
    3拍
  • 點交情形
    不點交
  • 保 證 金
    384萬
聯 絡 人
張先生
調整字級

物件資料
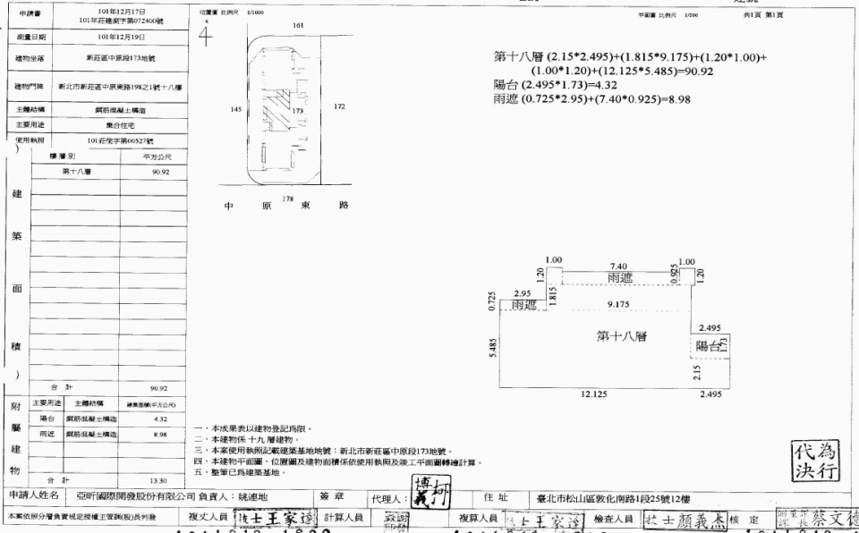
公 告 坪 數
57.39
主 建 坪 數
27.50
附 屬 坪 數
4.01
公 設 坪 數
14.80
其 他 坪 數
增 建 坪 數
土 地 坪 數
5.07
車 位 坪 數
11.08
車 位 屬 性
坡道平面
捷 運/火 車
機捷A3新北產業園區站 / 環狀線新北產業園區站
房 屋 類 型
電梯大樓
結   構
RC
屋   齡
12
樓 層 別
18/19
房 屋 用 途
集合住宅
會員資訊

請登入會員查看

公告資料
拍 賣 地 點
金融拍賣中心
案   號
112板金職二字第327號
拍 賣 範 圍
全部
拍 賣 原 因
清償債務
抵 押 權
未公告
筆   錄
點交否:不點交

使用情形
一、本件於112年6月13日現場查封時,由債權人代理人導往現場,在場人戴O瑩(即債務人前女友)稱房屋係其與家人居住,債務人未居住於此,房子為其出資購買,借名登記在債務人名下,現場無增建、無出租他人,亦無海砂屋、輻射屋、地震受創、火災、漏水、非自然死亡等足以影響交易之情事。據占有人戴O瑩112年9月4日具狀稱其與家人係在購買房屋當時就住在此處,因其係查封前即占有居住此標的,拍定後不點交。又本建物有停車位編號55,因停車位屬建物共同使用部分,其使用依法應由共有人協議之,故停車位部分拍定後亦不點交。
二、本件建物現況調查時,據第三人戴O瑩稱尚無聽聞有海沙屋、輻射屋、非自然死亡等足以影響交易等情事。債務人未具狀陳稱屋況。有關強制執行法第77條第1項第2款之調查事項,由於債權人及債務人對拍賣各有不同考量,雙方願意揭露之資訊未必完全真實,依不動產鑑定報告書所載,經查詢公開資訊網站,查無海砂屋、輻射屋、火災、震災、非自然死亡之列管,然因法院欠缺完整資訊且無相關鑑定等專業技能,故無法保證本件拍賣標的絕無海砂屋、輻射屋、地震受創、嚴重漏水、火災受損以及建物內無非自然死亡之情形或無其他足以影響本件不動產交易價值之特殊情事(如:工業住宅、嫌惡設施…等)。而法院已就卷內現場執行情況及不動產鑑定報告等相關資料揭示於前,以供應買人參酌。惟應買人仍應於投標前自行向相關機關、不動產仲介業者或周遭四鄰查明有無前開情事,並於投標前審慎評估房屋狀況以決定是否參與投標應買,應買人於投標前仍應自行查勘拍賣標的物,多方蒐集資訊,若得標後不得以有前開情形不明為由而異議或主張物之瑕疵(拍賣物買受人就物之瑕疵無擔保請求權)而主張減價或拍賣無效或對主張撤銷拍賣程序,如有不同意者,請慎重考慮勿投標,投標應買視為同意此拍賣條件。
三、刊登於新聞紙或網站之公告內容,如與法院公告欄張貼之公告內容不符時,一律以法院公告欄張貼之拍賣公告內容為準。 
四、若有停止、撤回、撤銷、延緩強制執行事由,而其事由確實發生於本案標的拍定日或拍定日前,縱已拍定,法院亦得撤銷拍定,無息返還已經繳交之款項,應買人、拍定人、債權人、債務人均不得異議,不同意之應買人請勿參與本件標的之應買。
五、本件標的物所有權人或使用人如有積欠工程受益費及水電、瓦斯或管理費等費用、公共基金等,應由拍定人自行查明後與相關單位洽商解決,並依公寓大廈管理條例第24條規定辦理,並注意拍定後民法第799之1條第4項規定之適用問題。
六、拍賣之不動產如於查封後經地政機關實施重測,其面積應以重測結果為準,拍定後債權人、債務人、拍定人或其他關係人均不得以面積增減請求增減價金或聲請撤銷拍賣。  
七、***(請投標人特別注意):
(一)本案拍賣程序係依司法院院解字第3855號、3949號,本件債權人為拍賣標的之第一順位抵押權人,抵押權之行使優先於刑事沒收,其執行拍賣程序不受影響而進行拍賣程序;如係因保全追徵目的而為之扣押,不妨礙強制執行之查封、扣押,亦無礙終局執行換價程序之進行。
(二)惟本件拍賣標的於查封時,其上已有法務部調查局新北市調查處發函辦理之禁止處分登記,即刑事處分登記。經法院函詢法務部調查局新北市調查處,其函覆:本案係臺灣新北地方檢察署愛股檢察官指揮偵辦(案號:111年度偵字第47384號詐欺案)。又經法院向新北地檢署函詢本件若拍定核發權利移轉證書時是否得塗銷法務部調查局新北市調查處之禁止處分登記,經新北地檢署於112年6月8日以新北檢貞愛111偵57153字第1129064923號函復本案尚在偵辦中,該不動產(即本件拍賣標的)為犯罪所得,礙難塗銷。
(三)再依新北市新莊地政事務所以112年5月18日新北莊地登字第1125858050號函,明確表示「本件不動產應由原囑託機關另函囑託本所為塗銷辦理」。是以前揭禁止處分未為塗銷前,依土地登記規則第141條規定,登記機關不得僅依貴處(即法院民事執行處)核發之不動產權利移轉證書辦理移轉登記。是依拍賣標的所管轄之地政事務所之函文意旨,本件拍定人於拍定後應自行向囑託機關聲請塗銷刑事禁止處分登記,始得登記為所有權人,請應買人特別注意。
(四)投標人若得標後不得以有無法塗銷刑事禁止處分登記(即原囑託禁止處分機關不同意塗銷)或主張「已繳納完所有拍定價款卻無法辦理所有權移轉登記」或拍賣公告記載不明或其他事由為由,而主張異議或物之瑕疵(拍賣物買受人就物之瑕疵無擔保請求權)或權利瑕疵擔保或其他請求,而主張減價、或拍賣無效、或對主張撤銷拍賣程序或請求損害賠償,如有不同意者,請慎重考慮勿投標,投
標應買視為同意此拍賣條件。

備註
一、上開不動產2宗合併拍賣,請投標人分別出價。
二、拍賣最低價額合計新台幣:壹仟玖佰貳拾萬元,以總價最高者得標。
三、保證金新台幣:參佰捌拾肆萬元。
內容展開

本物件資訊如有遺漏,以法院公告為準。

地圖
公 告 底 價
1920
開 標 結 果
拍定2442萬
  • 公告坪數
    57.39
  • 每坪單價
    33.45

    每坪單價以法院公告坪數概算,詳細拆算方式請洽專員。

  • 開 標 日
    2024/05/15 10:30
  • 拍  次
    3拍
  • 點交情形
    不點交
  • 保 證 金
    384萬
聯 絡 人
張先生

留 言