X
快速聯絡
諮詢專線:
線上諮詢:
或由專員為您服務,請留下
快速
聯絡

成功綠園 近龍潭行政園區

桃園市龍潭區成功路110巷11號3樓

  • Uhomes
  • Uhomes
  • Uhomes
  • Uhomes
  • Uhomes
  • Uhomes
  • Uhomes
  • Uhomes
  • Uhomes
  • Uhomes
  • Uhomes
  • Uhomes
  • 相片
  • 地圖
  • 建物平面圖
  • 法院拍賣公告
公告底價
295.2萬
開標結果
拍定373.1萬
  • 公告坪數
    31.67
  • 每坪單價
    9.32

    每坪單價以法院公告坪數概算,詳細拆算方式請洽專員。

  • 開 標 日
    2022/11/09 10:30
  • 拍  次
    2拍
  • 點交情形
    點交
  • 保 證 金
    59.1萬
聯 絡 人
徐專員
調整字級

物件資料
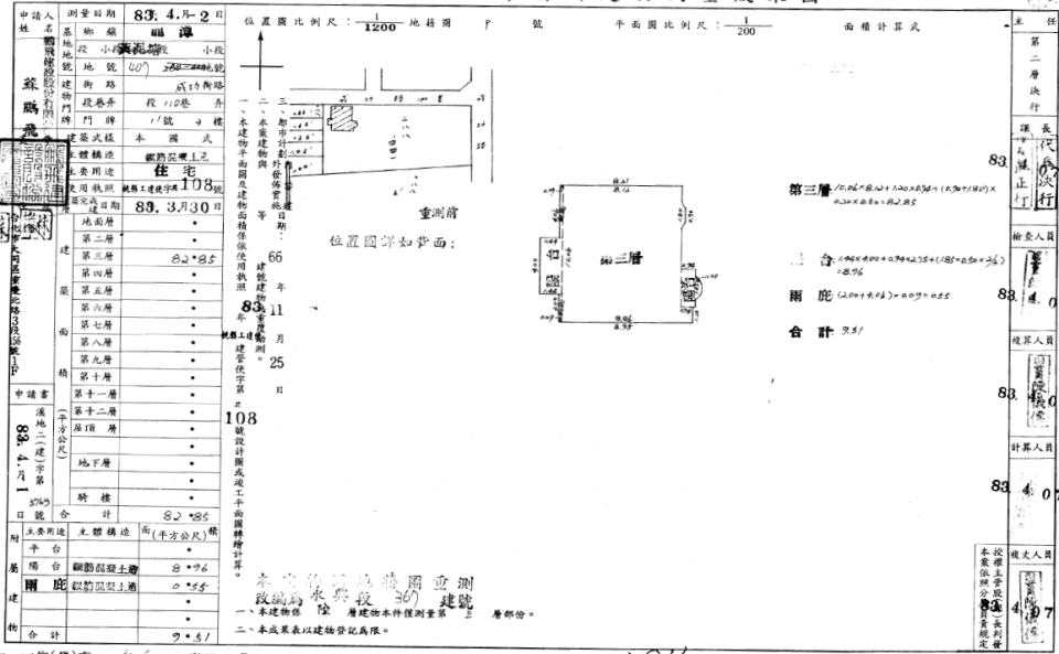
公 告 坪 數
31.67
主 建 坪 數
25.06
附 屬 坪 數
2.87
公 設 坪 數
3.74
其 他 坪 數
增 建 坪 數
土 地 坪 數
10.06
車 位 坪 數
車 位 屬 性
-
捷 運/火 車
房 屋 類 型
華廈
結   構
RC
屋   齡
28
樓 層 別
3/6
房 屋 用 途
住家用
會員資訊

請登入會員查看

公告資料
拍 賣 地 點
金融拍賣中心
案   號
110桃金職九字第249號
拍 賣 範 圍
全部
拍 賣 原 因
清償債務
抵 押 權
抵押權拍定後塗銷
筆   錄
點交否:點交

使用情形
本件標的建物現為居住使用,客廳有神像、牌位,並依查封時在場之第三人張⚫春(債務人之母親)陳稱無附車位,每個月應繳管理費約500元,自述無欠繳。另據債權人陳報目前房屋為債務人及其家屬自住使用、無增建、無車位。本件拍定後點交。
內容展開

本物件資訊如有遺漏,以法院公告為準。

地圖
公 告 底 價
295.2
開 標 結 果
拍定373.1萬
  • 公告坪數
    31.67
  • 每坪單價
    9.32

    每坪單價以法院公告坪數概算,詳細拆算方式請洽專員。

  • 開 標 日
    2022/11/09 10:30
  • 拍  次
    2拍
  • 點交情形
    點交
  • 保 證 金
    59.1萬
聯 絡 人
徐專員

留 言