X
快速聯絡
諮詢專線:
線上諮詢:
或由專員為您服務,請留下
快速
聯絡

南京三民站 晶鑽新第

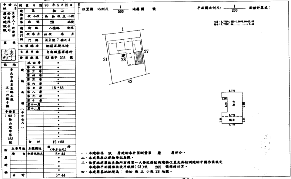
台北市松山區八德路四段312號7樓之4

  • Uhomes
  • Uhomes
  • Uhomes
  • Uhomes
  • Uhomes
  • Uhomes
  • Uhomes
  • Uhomes
  • Uhomes
  • Uhomes
  • Uhomes
  • Uhomes
  • 相片
  • 地圖
  • 建物平面圖
  • 法院拍賣公告
公告底價
784.6萬
開標結果
拍定969.9999萬
  • 公告坪數
    17.43
  • 每坪單價
    45.01

    每坪單價以法院公告坪數概算,詳細拆算方式請洽專員。

  • 開 標 日
    2023/04/11 14:30
  • 拍  次
    3拍
  • 點交情形
    不點交
  • 保 證 金
    157萬
聯 絡 人
吳先生
調整字級

物件資料
公 告 坪 數
17.43
主 建 坪 數
4.72
附 屬 坪 數
1.64
公 設 坪 數
4.27
其 他 坪 數
增 建 坪 數
6.80
土 地 坪 數
2.49
車 位 坪 數
車 位 屬 性
-
捷 運/火 車
南京三民站
房 屋 類 型
華廈
結   構
RC
屋   齡
19
樓 層 別
7/9
房 屋 用 途
自由職業事務所
會員資訊

請登入會員查看

公告資料
拍 賣 地 點
臺灣臺北地方法院
案   號
111年度司執字第47796號
拍 賣 範 圍
全部
拍 賣 原 因
清償債務
抵 押 權
未公告
筆   錄
點交否:不點交

使用情形
一、本件拍賣標的據本院現場查封及履勘時在場第三人張○珍稱,現由其居住使用中,與前屋主即林0靜(已死亡,本件債務人係繼承其遺產)訂有口頭之租約,約自民國93年即居住在此,每月均有給付租金予林0靜,自林0靜死後之水電瓦斯費及管理費亦為其所繳納,依據其與林0靜之承諾繼續居住,故拍定後不點交,請應買人注意。
二、本件拍賣標的未附車位。拍賣之3205建號建物因未辦理建築物所有權第一次登記,拍定後無法逕持不動產權利移轉證書辦理所有權移轉登記,且依據臺北市建築管理工程處111年7月11日函覆,為垂直增建違章建築(陽台、夾層),屬新違章建築,部分俟行政送達程序完成後依序執行,部分依現行「臺北市違章建築處理規則」相關規定辦理,故拍定人須自行承擔被拆除之風險,請應買人注意。另本件3088建號之建物謄本記載其主要用途為自由職業事務所,此部分亦請應買人注意。
三、拍賣標的經在場人稱無發生非自然死亡情形,亦無發生過火災事件,亦非屬列管之海砂屋、輻射屋、地震受損屋,另經函詢主管機關查詢無海砂屋、輻射屋、地震或火災受創及建物內有非自然死亡等足以影響交易之特殊情事。本件拍賣標的物依強制執行法第69條之規定,拍賣物買受人就物之瑕疵無擔保請求權,另建物實際狀況仍須經專業人員辦理相關鑑定及偵測始能確認是否為海砂屋、有無輻射、有無地震受創,請應買人注意。
內容展開

本物件資訊如有遺漏,以法院公告為準。

地圖
公 告 底 價
784.6
開 標 結 果
拍定969.9999萬
  • 公告坪數
    17.43
  • 每坪單價
    45.01

    每坪單價以法院公告坪數概算,詳細拆算方式請洽專員。

  • 開 標 日
    2023/04/11 14:30
  • 拍  次
    3拍
  • 點交情形
    不點交
  • 保 證 金
    157萬
聯 絡 人
吳先生

留 言