X
快速聯絡
諮詢專線:
線上諮詢:
或由專員為您服務,請留下
快速
聯絡

新北產業園區站 容邑PARK

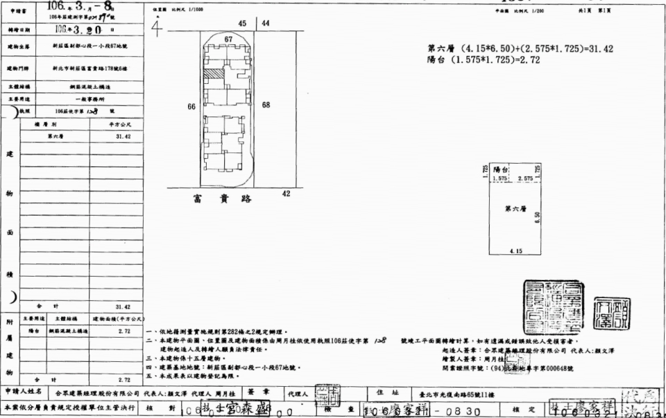
新北市新莊區富貴路178號6樓

  • Uhomes
  • Uhomes
  • Uhomes
  • Uhomes
  • Uhomes
  • Uhomes
  • Uhomes
  • Uhomes
  • Uhomes
  • Uhomes
  • Uhomes
  • Uhomes
  • 相片
  • 地圖
  • 建物平面圖
  • 法院拍賣公告
公告底價
880萬
開標結果
拍定1008.9萬
  • 公告坪數
    25.17
  • 每坪單價
    34.96

    每坪單價以法院公告坪數概算,詳細拆算方式請洽專員。

  • 開 標 日
    2022/08/17 09:30
  • 拍  次
    2拍
  • 點交情形
    點交
  • 保 證 金
    176萬
聯 絡 人
調整字級

物件資料
公 告 坪 數
25.17
主 建 坪 數
9.50
附 屬 坪 數
0.82
公 設 坪 數
5.20
其 他 坪 數
增 建 坪 數
土 地 坪 數
1.56
車 位 坪 數
9.65
車 位 屬 性
坡道平面
捷 運/火 車
新北產業園區站
房 屋 類 型
電梯大樓
結   構
RC
屋   齡
5
樓 層 別
6/15
房 屋 用 途
一般事務所
會員資訊

請登入會員查看

公告資料
拍 賣 地 點
臺灣新北地方法院
案   號
111年度司執字第8624號
拍 賣 範 圍
全部
拍 賣 原 因
拍賣抵押物
抵 押 權
抵押權拍定後塗銷
筆   錄
使用情形
本件建物查封時,據債務人之妻在場陳稱,本件房屋係債務人自住,無出租情形,拍定後點交。

至本件拍賣該共同使用部分之建物,是否有停車位應買人應自行注意查明,縱有該附屬之停車位,惟因係拍賣上開物之應有部分,其使用依法依該共有人協議為之,故此部分拍定後仍不點交。

另依鑑價報告所載,本件標的經初步調查無海砂屋、輻射屋、地震受創、火災受損或非自然死亡等情形,惟若有因調查限度難以查明,致與鑑價報告內容所載容有出入者,請應買人逕向相關單位洽詢查明,綜合考量相關風險再行投標,且拍賣公告所載標的物面積如與地政事務所核發之不動產登記謄本不同,以地政事務所核發者為準,應買人不得於拍定後再執前揭事由聲明異議或聲請撤拍,併予說明。
內容展開

本物件資訊如有遺漏,以法院公告為準。

地圖
公 告 底 價
880
開 標 結 果
拍定1008.9萬
  • 公告坪數
    25.17
  • 每坪單價
    34.96

    每坪單價以法院公告坪數概算,詳細拆算方式請洽專員。

  • 開 標 日
    2022/08/17 09:30
  • 拍  次
    2拍
  • 點交情形
    點交
  • 保 證 金
    176萬
聯 絡 人

留 言