X
快速聯絡
諮詢專線:
線上諮詢:
或由專員為您服務,請留下
快速
聯絡

冠德鼎華 頭前重劃區

新北市新莊區福德一街32號2樓

  • Uhomes
  • Uhomes
  • Uhomes
  • Uhomes
  • Uhomes
  • Uhomes
  • Uhomes
  • Uhomes
  • Uhomes
  • Uhomes
  • Uhomes
  • Uhomes
  • 相片
  • 地圖
  • 建物平面圖
  • 法院拍賣公告
公告底價
2800萬
開標結果
拍定3055.1萬
  • 公告坪數
    69.82
  • 每坪單價
    40.10

    每坪單價以法院公告坪數概算,詳細拆算方式請洽專員。

  • 開 標 日
    2022/07/11 14:30
  • 拍  次
    2拍
  • 點交情形
    點交
  • 保 證 金
    560萬
聯 絡 人
調整字級

物件資料
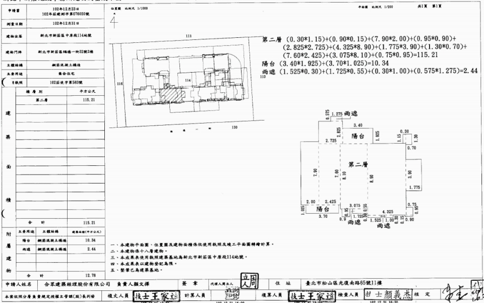
公 告 坪 數
69.82
主 建 坪 數
34.85
附 屬 坪 數
3.85
公 設 坪 數
18.64
其 他 坪 數
增 建 坪 數
土 地 坪 數
9.69
車 位 坪 數
12.48
車 位 屬 性
坡道平面
捷 運/火 車
環狀線新北產業園區站 / 環狀線幸福站
房 屋 類 型
電梯大樓
結   構
RC
屋   齡
9
樓 層 別
2/18
房 屋 用 途
集合住宅
會員資訊

請登入會員查看

公告資料
拍 賣 地 點
臺灣新北地方法院
案   號
111年度司執字第17406號
拍 賣 範 圍
全部
拍 賣 原 因
拍賣抵押物
抵 押 權
抵押權拍定後塗銷
筆   錄
使用情形 一、本件標的於查封時,無人應門,據社區管委會經理在場稱債務人很久沒居住於此,嗣經債權人於111年2月21日陳報本件標的現由本件債權人聲請債務人執行債務之保證人即第三人邱0涵占有使用中,本件建物部分拍定後點交。本件標的另有1個停車位編號77,惟上開停車位編號僅供參考,其實際情形及其編號仍應請應買人自行查明,拍定後不得以此爭執請求撤銷拍定。且停車位係本件建物區分所有權之共有部分,應屬約定專用部分,其管理使用應由全體區分所有權人為協議約定分管,拍定後法律關係由拍定人自理,請應買人注意,停車位部分拍定後不點交。
二、投標人應自行查明債務人有無積欠工程受益費、水電瓦斯費、管理費、公共基金等。本件標的原所有權人或使用人如有積欠工程受益費、水電、瓦斯、管理費等相關費用,應由拍定人自行查明後與相關單位洽商解決。又如依不動產登記謄本所示,本件標的如須繳納登記費等費用始得核發書狀等情事,請投標人應自行注意該項記載。
三、依鑑定報告所載,本件建物並無在海砂屋、輻射屋、凶宅網等各媒體網站記載,依外觀判斷勘估標的尚無等影響交易價額情形;本院已就卷內現場執行情況揭示於前,以供投標人參酌。因本院欠缺完整資料且無相關鑑定等專業技能,實際情況可能與鑑定報告或上揭情形有所出入,仍請投標人逕向相關單位或周遭四鄰洽詢查明,並決定是否參與投標應買,且不得於拍定後再執前揭事由聲明異議或聲請撤拍。
內容展開

本物件資訊如有遺漏,以法院公告為準。

地圖
公 告 底 價
2800
開 標 結 果
拍定3055.1萬
  • 公告坪數
    69.82
  • 每坪單價
    40.10

    每坪單價以法院公告坪數概算,詳細拆算方式請洽專員。

  • 開 標 日
    2022/07/11 14:30
  • 拍  次
    2拍
  • 點交情形
    點交
  • 保 證 金
    560萬
聯 絡 人

留 言