X
快速聯絡
諮詢專線:
線上諮詢:
或由專員為您服務,請留下
快速
聯絡

鼎禮

新北市三峽區學府路8號7樓

  • Uhomes
  • Uhomes
  • Uhomes
  • Uhomes
  • Uhomes
  • Uhomes
  • Uhomes
  • Uhomes
  • Uhomes
  • Uhomes
  • Uhomes
  • Uhomes
  • 相片
  • 地圖
  • 建物平面圖
  • 法院拍賣公告
公告底價
1408萬
開標結果
承受
  • 公告坪數
    71.79
  • 每坪單價
    19.61

    每坪單價以法院公告坪數概算,詳細拆算方式請洽專員。

  • 開 標 日
    2019/12/04 10:30
  • 拍  次
    3拍
  • 點交情形
    不點交
  • 保 證 金
    281.6萬
聯 絡 人
調整字級

物件資料
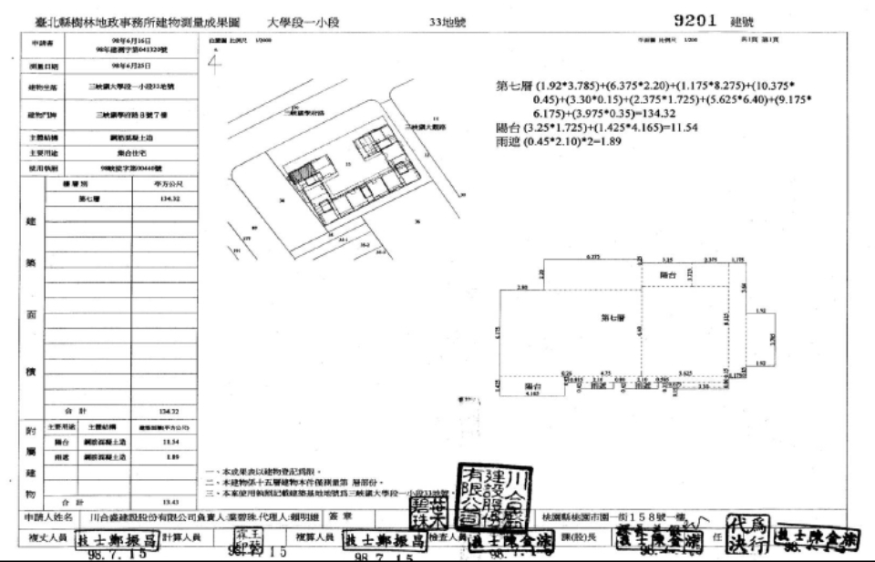
公 告 坪 數
71.79
主 建 坪 數
40.63
附 屬 坪 數
4.06
公 設 坪 數
18.04
其 他 坪 數
增 建 坪 數
土 地 坪 數
9.34
車 位 坪 數
9.06
車 位 屬 性
-
捷 運/火 車
房 屋 類 型
電梯大樓
結   構
RC
屋   齡
10
樓 層 別
7/15
房 屋 用 途
集合住宅
會員資訊

請登入會員查看

公告資料
拍 賣 地 點
金融拍賣中心
案   號
108年度板金職字第341號
拍 賣 範 圍
全部
拍 賣 原 因
拍賣抵押物
抵 押 權
抵押權拍定後塗銷
筆   錄
點交否:不點交
1‧本件建物於108年7月9日查封時,債務人不在場,第三人鄭先生在場陳稱本件建物現由伊居住使用,債務人未住此,伊係前屋主,因向債務人借貸一筆錢,故將本件建物過戶予債務人,債務人並未將本件建物租給伊,而係由伊幫債務人支付每個月2萬多元之房貸利息,債務人未再向伊收取任何費用,本件建物與隔壁6號建物打通使用,無海砂屋、輻射屋、地震受創、嚴重漏水、火災受損或非自然死亡等影響交易價額之情形。本件建物現由第三人占有使用,拍定後不點交。
內容展開

本物件資訊如有遺漏,以法院公告為準。

地圖
公 告 底 價
1408
開 標 結 果
承受
  • 公告坪數
    71.79
  • 每坪單價
    19.61

    每坪單價以法院公告坪數概算,詳細拆算方式請洽專員。

  • 開 標 日
    2019/12/04 10:30
  • 拍  次
    3拍
  • 點交情形
    不點交
  • 保 證 金
    281.6萬
聯 絡 人

留 言