X
快速聯絡
諮詢專線:
線上諮詢:
或由專員為您服務,請留下
快速
聯絡

青塘園美透天 近機捷A19站

桃園市中壢區永發路29號

  • Uhomes
  • Uhomes
  • Uhomes
  • Uhomes
  • Uhomes
  • Uhomes
  • Uhomes
  • Uhomes
  • Uhomes
  • Uhomes
  • Uhomes
  • Uhomes
  • 相片
  • 地圖
  • 建物平面圖
  • 法院拍賣公告
公告底價
4,630.8萬
開標結果
拍定5060萬
  • 公告坪數
    82.07
  • 每坪單價
    56.42

    每坪單價以法院公告坪數概算,詳細拆算方式請洽專員。

  • 開 標 日
    2025/11/20 14:30
  • 拍  次
    1拍
  • 點交情形
    不點交
  • 保 證 金
    926.2萬
聯 絡 人
徐專員
調整字級

物件資料
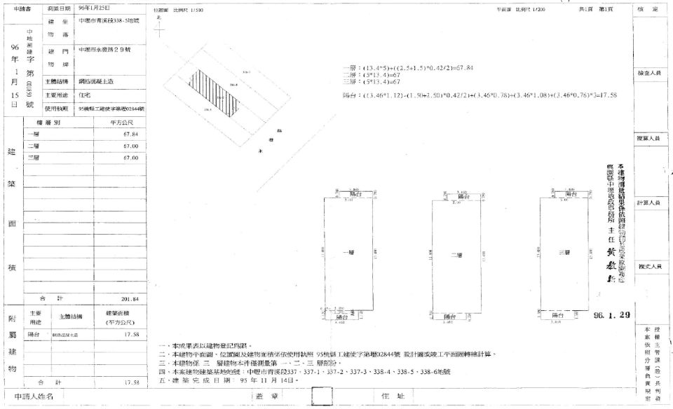
公 告 坪 數
82.07
主 建 坪 數
61.04
附 屬 坪 數
5.31
公 設 坪 數
其 他 坪 數
增 建 坪 數
15.72
土 地 坪 數
40.46
車 位 坪 數
車 位 屬 性
-
捷 運/火 車
A19桃園體育園區站
房 屋 類 型
透天厝
結   構
RC
屋   齡
20
樓 層 別
全棟/3
房 屋 用 途
住家用
會員資訊

請登入會員查看

公告資料
拍 賣 地 點
臺灣桃園地方法院
案   號
114年度司執字第75087號甲標
拍 賣 範 圍
全部
拍 賣 原 因
拍賣抵押物
抵 押 權
抵押權拍定後塗銷
筆   錄
點交否:不點交
現有租客占有使用中,拍定後不點交。

使用情形
本件標的於114年7月16日現場查封時,在場人為租客,稱債務人謝O杰有向其借款,用借款折抵每月租金,租期自106或107年簽立,租期約7、8年,每月租金2萬多元,並稱無海砂屋、輻射屋、水災、火災、非自然死亡等足以影響交易價格之特殊情事,之前整棟會漏水,惟現已做好防水,目前無漏水。據地政稱1、3樓有增建,增建與主建物相通,無獨立出入口。

備註
一、上開不動產3宗合併拍賣,請投標人分別出價。
二、拍賣最低價額合計新台幣:46,308,000元,以總價最高者得標。
三、保證金新台幣:9,262,000元。
四、本件標的物所設定之抵押權於拍定後均塗銷。
五、第6739建號建物係未辦保存登記之增建物,拍定人無法持本院核發之權利移轉證書辦理所有權登記,且有被拆除或遭他人主張權利之風險,請應買人注意。又,本件係以建物現況拍賣,當事人及拍定人均不得以面積不符或上開事由,請求增減價金、撤銷拍定或其他爭執。
六、經分局函復,查95年7月迄今之刑案現場勘察資料,無相關紀錄,請應買人參考、注意。
七、本件拍賣之建物,本院卷內依通常調查所得足以影響交易之特殊情事等相關資訊,已於附註欄載明;其他非本院依通常調查所可得知之資訊,則非拍賣公告應記載事項,拍定後均不得以拍賣公告未記載而聲請減少價金或撤銷拍定。
八、本件標的物原所有權人或使用人如有積欠工程受益費及水電、瓦斯費或管理費用,應由拍定人自行查明後與相關單位洽商解決,不得以此為由事後向本院提出爭執或聲明異議。
九、刊登於新聞紙或網路之公告內容如與本院公告欄張貼之公告內容不符時,一律以本院公告欄張貼之拍賣公告內容為準。
內容展開

本物件資訊如有遺漏,以法院公告為準。

地圖
公 告 底 價
4,630.8
開 標 結 果
拍定5060萬
  • 公告坪數
    82.07
  • 每坪單價
    56.42

    每坪單價以法院公告坪數概算,詳細拆算方式請洽專員。

  • 開 標 日
    2025/11/20 14:30
  • 拍  次
    1拍
  • 點交情形
    不點交
  • 保 證 金
    926.2萬
聯 絡 人
徐專員

留 言