X
快速聯絡
諮詢專線:
線上諮詢:
或由專員為您服務,請留下
快速
聯絡

明駝一村 龜山國小

桃園市龜山區明德路明駝一村7號5樓

  • Uhomes
  • Uhomes
  • Uhomes
  • Uhomes
  • Uhomes
  • Uhomes
  • Uhomes
  • Uhomes
  • Uhomes
  • Uhomes
  • Uhomes
  • Uhomes
  • 相片
  • 地圖
  • 建物平面圖
  • 法院拍賣公告
公告底價
816萬
開標結果
拍定962萬
  • 公告坪數
    53.47
  • 每坪單價
    15.26

    每坪單價以法院公告坪數概算,詳細拆算方式請洽專員。

  • 開 標 日
    2025/12/09 10:30
  • 拍  次
    2拍
  • 點交情形
    點交
  • 保 證 金
    163.2萬
聯 絡 人
徐專員
調整字級

物件資料
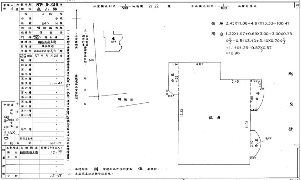
公 告 坪 數
53.47
主 建 坪 數
30.37
附 屬 坪 數
3.92
公 設 坪 數
19.18
其 他 坪 數
增 建 坪 數
土 地 坪 數
16.59
車 位 坪 數
車 位 屬 性
坡道平面
捷 運/火 車
桃捷棕線BRH03站
房 屋 類 型
華廈
結   構
RC
屋   齡
28
樓 層 別
5/8
房 屋 用 途
住家用
會員資訊

請登入會員查看

公告資料
拍 賣 地 點
臺灣桃園地方法院
案   號
113年度司執字第96132號
拍 賣 範 圍
全部
拍 賣 原 因
清償債務
抵 押 權
抵押權拍定後塗銷
筆   錄
點交否:點交

使用情形
於現場執行時,拍賣建物屋內有大量物品,其後經函警協查,無人居住,建物拍定後點交。

備註
一、上開不動產2宗合併拍賣,請投標人分別出價。
二、拍賣最低價額合計新台幣:8,160,000元,以總價最高者得標。
三、保證金新台幣:1,632,000元。
四、本件標的物所設定之抵押權於拍定後均塗銷。
五、拍賣建物據債權人查報非兇宅或海砂屋、輻射屋,又債務人自113年5月起即積欠管理費、每月1200元(管理費部分僅為債權人114年3月5日陳報狀記載之狀態,實際金額仍應向管委會查詢);再函詢分局,其函復該址五年內並無非自然死亡案件之現場勘查資紀錄,請應買人參考、注意。
六、本件標的物據債權人查報陳稱有一車位編號為地下一層76號,惟建物登記謄本中並無停車位之記載,本註記僅供參考,如有爭議,以實體確定判決為準;又此部分拍定後不進行點交,應買人亦不得以上開車位之有無而為爭執或請求撤銷拍賣,請特別注意。本件拍賣之建物,本院卷內依通常調查所得足以影響交易之特殊情事等相關資訊,已於備註欄載明;其他非本院依通常調查所可得知之資訊,則非拍賣公告應記載事項,拍定後均不得以拍賣公告未記載而聲請減少價金或聲請撤銷拍定。
七、本件標的物原所有權人或使用人如有積欠工程受益費及水電、瓦斯費或管理費用,應由拍定人自行查明後與相關單位洽商解決,不得以此為由事後向本院提出爭執或聲明異議。
八、刊登於新聞紙或網路之公告內容如與本院公告欄張貼之公告內容不符時,一律以本院公告欄張貼之拍賣公告內容為準。
內容展開

本物件資訊如有遺漏,以法院公告為準。

地圖
公 告 底 價
816
開 標 結 果
拍定962萬
  • 公告坪數
    53.47
  • 每坪單價
    15.26

    每坪單價以法院公告坪數概算,詳細拆算方式請洽專員。

  • 開 標 日
    2025/12/09 10:30
  • 拍  次
    2拍
  • 點交情形
    點交
  • 保 證 金
    163.2萬
聯 絡 人
徐專員

留 言