X
快速聯絡
諮詢專線:
線上諮詢:
或由專員為您服務,請留下
快速
聯絡

春城大砌 北大高中

新北市樹林區大義路236號7樓

  • Uhomes
  • Uhomes
  • Uhomes
  • Uhomes
  • Uhomes
  • Uhomes
  • Uhomes
  • Uhomes
  • Uhomes
  • Uhomes
  • Uhomes
  • Uhomes
  • 相片
  • 地圖
  • 建物平面圖
  • 法院拍賣公告
公告底價
2820萬
開標結果
停拍提供擔保
  • 公告坪數
    58.68
  • 每坪單價
    48.05

    每坪單價以法院公告坪數概算,詳細拆算方式請洽專員。

  • 開 標 日
    2025/10/15 10:30
  • 拍  次
    1拍
  • 點交情形
    不點交
  • 保 證 金
    564萬
聯 絡 人
吳經理
調整字級

物件資料
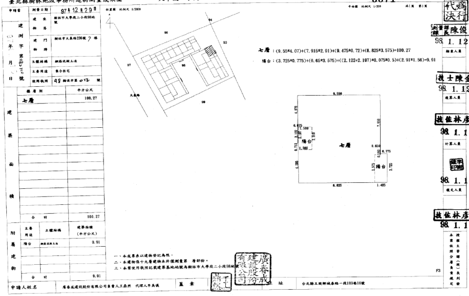
公 告 坪 數
58.68
主 建 坪 數
30.33
附 屬 坪 數
2.99
公 設 坪 數
15.32
其 他 坪 數
增 建 坪 數
土 地 坪 數
4.95
車 位 坪 數
10.04
車 位 屬 性
坡道平面
捷 運/火 車
三鶯線LB06三峽(國家教育研究院)站
房 屋 類 型
電梯大樓
結   構
RC
屋   齡
16
樓 層 別
7/19
房 屋 用 途
住家用
會員資訊

請登入會員查看

公告資料
拍 賣 地 點
金融拍賣中心
案   號
114板金職一字第213號
拍 賣 範 圍
全部
拍 賣 原 因
給付票款
抵 押 權
抵押權拍定後塗銷
筆   錄
點交否:不點交

使用情形
一、本件建物查封時,按門鈴後無人應門,社區秘書表示,該戶僅債務人自住,有一位於B4編號166之汽車停車位,以及位於B1之機車停車格。惟嗣後囑請轄區新北市政府警察局三峽分局協助調查,該局於113年7月8日赴現場查訪結果,系爭房屋現由債務人借用與前妻徐O婷與子女居住,有房屋現況調查表附卷可稽。
二、因債務人未實際居住於房屋內,且第三人已於查封前合法有權占用房屋,故拍定後不點交。又於地下四層編號166號之停車位,係6671建號之共同使用部分6774建號之所有權應有部分,權利範圍為十萬分之116,應由全體區分所有權人協議使用分管方法,而位於地下一層編號13之機車停車位,則未記載於不動產登記謄本中,故前開兩停車位拍定後亦不點交。
三、另房屋現占有人固稱系爭房屋並無海砂屋、輻射屋、地震受創、嚴重漏水、火災受損、非自然死亡等情形。惟因鑑價公司未入內勘估,無法判斷該屋之氯離子含量及輻射劑量,外觀上則無明顯之火災及地震受創痕跡,亦無從得知是否有非自然死亡發生於屋內;故實際情形仍應以專業鑑定機構及相關公部門發佈為主,應買人亦宜再行查明。審慎評估其風險。

備註
一、上開不動產2宗合併拍賣,請投標人分別出價。
二、拍賣最低價額合計新台幣:貳仟捌佰貳拾萬元,以總價最高者得標。
三、保證金新台幣:伍佰陸拾肆萬元。
四、本件抵押權設定於拍定後均塗銷。
五、本件土地及建物登記謄本其他登記事項載明:「(限制登記事項)111年8月9日板樹登字第24270號,預告登記請求權人:黃靜文,內容:未辦妥所有權移轉登記予請求權人前不得移轉予他人,義務人:鄒歷傑‧‧‧111年8月10日登記」等語,投標人應審慎評估此一風險後始為投標,拍定後拍定人不得以此事由主張異議或撤拍。
六、本件如有停止、撤回、撤銷、延緩執行等事由,且該事由確實發生於本案拍定前,縱已宣布拍定,法院亦得停止拍定,無息返還已繳交之款項,當事人均不得異議,不同意者,請勿參與投標應買。
七、本件刊登於網站或公所或本公司之公告內容,如與法院電子公告欄發佈之公告內容不符時,一律以法院網站及電子公告欄之公告內容為準。
內容展開

本物件資訊如有遺漏,以法院公告為準。

地圖
公 告 底 價
2820
開 標 結 果
停拍提供擔保
  • 公告坪數
    58.68
  • 每坪單價
    48.05

    每坪單價以法院公告坪數概算,詳細拆算方式請洽專員。

  • 開 標 日
    2025/10/15 10:30
  • 拍  次
    1拍
  • 點交情形
    不點交
  • 保 證 金
    564萬
聯 絡 人
吳經理

留 言