X
快速聯絡
諮詢專線:
線上諮詢:
或由專員為您服務,請留下
快速
聯絡

近吳沙國中 恬靜懷舊二層樓~

宜蘭縣礁溪鄉三興巷6弄13號(未保存)(無土地)

  • Uhomes
  • Uhomes
  • Uhomes
  • Uhomes
  • Uhomes
  • Uhomes
  • Uhomes
  • Uhomes
  • Uhomes
  • Uhomes
  • Uhomes
  • Uhomes
  • 相片
  • 地圖
  • 建物平面圖
  • 法院拍賣公告
公告底價
200萬
開標結果
停拍清償
  • 公告坪數
    84.73
  • 每坪單價
    2.36

    每坪單價以法院公告坪數概算,詳細拆算方式請洽專員。

  • 開 標 日
    2025/10/07 14:30
  • 拍  次
    1拍
  • 點交情形
    詳見公告
  • 保 證 金
    40萬
聯 絡 人
吳經理
調整字級

物件資料
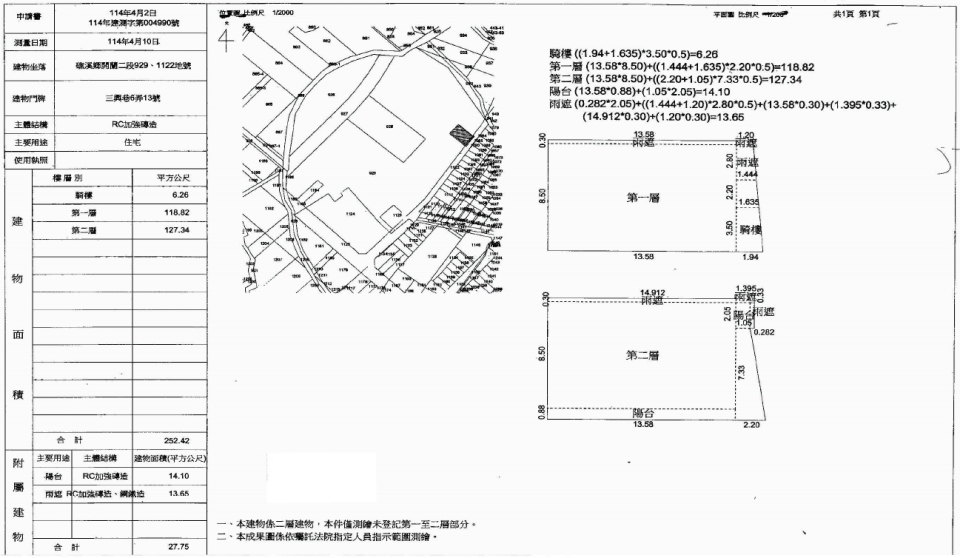
公 告 坪 數
84.73
主 建 坪 數
附 屬 坪 數
公 設 坪 數
其 他 坪 數
增 建 坪 數
84.73
土 地 坪 數
車 位 坪 數
車 位 屬 性
-
捷 運/火 車
台鐵四城車站
房 屋 類 型
其他
結   構
RC加強磚造
屋   齡
0
樓 層 別
全棟/2
房 屋 用 途
住家用
會員資訊

請登入會員查看

公告資料
拍 賣 地 點
法務部行政執行署宜蘭分署
案   號
110年度牌稅執字第39381號
拍 賣 範 圍
全部
拍 賣 原 因
行政執行法
抵 押 權
未公告
筆   錄
拍定後,依拍賣標的現狀點交,惟點交費用由拍定人自理,且經查明如有依法不得點交之情事時,本分署得不點交。

使用情形
動產現況:依本分署113年8月30日不動產查封筆錄記載,供投標人參考,其最確切之現況,仍請投標人自行查明注意:移送機關代理人導往現場指封,義務人之不動產如指封切結書所載,並經房稅承辦人員攜帶房屋稅籍紀錄表及平面圖到場比對表示,該未辦保存建物為義務人所有,且與稅籍登記相符。該標地為義務人自住,為2層樓、內部有樓梯之房屋。
內容展開

本物件資訊如有遺漏,以法院公告為準。

地圖
公 告 底 價
200
開 標 結 果
停拍清償
  • 公告坪數
    84.73
  • 每坪單價
    2.36

    每坪單價以法院公告坪數概算,詳細拆算方式請洽專員。

  • 開 標 日
    2025/10/07 14:30
  • 拍  次
    1拍
  • 點交情形
    詳見公告
  • 保 證 金
    40萬
聯 絡 人
吳經理

留 言