X
快速聯絡
諮詢專線:
線上諮詢:
或由專員為您服務,請留下
快速
聯絡

悅築雙城美墅社區 南屯站

台中市南屯區大墩六街425之10號

  • Uhomes
  • Uhomes
  • Uhomes
  • Uhomes
  • 相片
  • 地圖
  • 建物平面圖
  • 法院拍賣公告
公告底價
3,290.5萬
開標結果
拍定3822萬
  • 公告坪數
    123.90
  • 每坪單價
    26.55

    每坪單價以法院公告坪數概算,詳細拆算方式請洽專員。

  • 開 標 日
    2025/06/04 10:30
  • 拍  次
    2拍
  • 點交情形
    點交
  • 保 證 金
    987.1萬
聯 絡 人
丘先生
調整字級

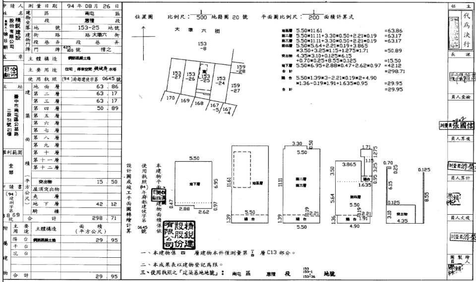
物件資料
公 告 坪 數
123.90
主 建 坪 數
77.58
附 屬 坪 數
9.05
公 設 坪 數
17.36
其 他 坪 數
地下層:12.74
增 建 坪 數
7.17
土 地 坪 數
31.52
車 位 坪 數
車 位 屬 性
-
捷 運/火 車
南屯站 / 文心森林公園站
房 屋 類 型
別墅
結   構
RC
屋   齡
20
樓 層 別
全棟/4
房 屋 用 途
住宅、停車空間、機械房、水塔
會員資訊

請登入會員查看

公告資料
拍 賣 地 點
金融拍賣中心
案   號
114中金職同字第73號
拍 賣 範 圍
全部
拍 賣 原 因
清償債務
抵 押 權
抵押權拍定後塗銷
筆   錄
備註
一、上開不動產4宗合併拍賣,請投標人分別出價。
二、拍賣最低價額合計新台幣:參仟貳佰玖拾萬伍仟元,以總價最高者得標。
三、保證金新台幣:玖佰捌拾柒萬壹仟元。
四、他項權利:抵押權於拍定後塗銷。
五、依估價報告書及地政人指界,153─25地號土地為拍賣建物之座落基地,153─8地號土地作為社區管理室、中庭通道、花園、公社樓梯使用使用,拍賣建物位於悅築雙城社區內,屋齡約20年,經檢視屋況,一樓後面牆壁外推至陽台,陽台後面有磚造牆壁採光罩之增建,2、3樓無增建,4樓前面有光罩增建,頂樓突出物前面有光罩之增建,據債權人代理人稱:拍賣之不動產現無人居住使用,故若拍定後無他人主張正當占用權源,且無依法不得點交之情形,則拍定後建物得點交。至有無海砂屋、輻射屋、地震、火災、水災、非自然死亡等足以影響交易之情事,則未據債權人、債務人提及,惟實際上是否有海砂屋、輻射屋、地震、火災、水災、非自然死亡等足以影響交易之情事,應買人於投標前仍應自行查明,審慎投標,以免受損,若拍賣標的有上述足以影響拍賣標的之情事,請關係人儘速檢附相關證明資料陳報法院,以供法院即時審酌。另依強制執行法第69條之規定,拍賣物買受人就物之瑕疵本無擔保請求權,不得於拍定後據此請求撤銷拍定。
六、集(居)合式住宅:基地、公共設施(含道路)用地之共有人無優先承買權。
七、未保存登記建物或增建部分,得標人應自行負擔不能為所有權移轉登記及被拆除之危險。增建或未辦保存登記建物,面積以實測為準,且債權人、債務人及拍定人均不得以面積不符,請求增減價金或撤銷拍定。
內容展開

本物件資訊如有遺漏,以法院公告為準。

地圖
公 告 底 價
3,290.5
開 標 結 果
拍定3822萬
  • 公告坪數
    123.90
  • 每坪單價
    26.55

    每坪單價以法院公告坪數概算,詳細拆算方式請洽專員。

  • 開 標 日
    2025/06/04 10:30
  • 拍  次
    2拍
  • 點交情形
    點交
  • 保 證 金
    987.1萬
聯 絡 人
丘先生

留 言