X
快速聯絡
諮詢專線:
線上諮詢:
或由專員為您服務,請留下
快速
聯絡

後龍第一家 門前停車透天

苗栗縣後龍鎮中華路716巷46號

  • Uhomes
  • Uhomes
  • Uhomes
  • Uhomes
  • Uhomes
  • Uhomes
  • Uhomes
  • Uhomes
  • Uhomes
  • Uhomes
  • Uhomes
  • Uhomes
  • 相片
  • 地圖
  • 建物平面圖
  • 法院拍賣公告
公告底價
467.2萬
開標結果
拍定492.9999萬
  • 公告坪數
    68.28
  • 每坪單價
    6.84

    每坪單價以法院公告坪數概算,詳細拆算方式請洽專員。

  • 開 標 日
    2025/05/06 14:30
  • 拍  次
    3拍
  • 點交情形
    點交
  • 保 證 金
    93.5萬
聯 絡 人
丘先生
調整字級

物件資料
公 告 坪 數
68.28
主 建 坪 數
34.92
附 屬 坪 數
11.20
公 設 坪 數
其 他 坪 數
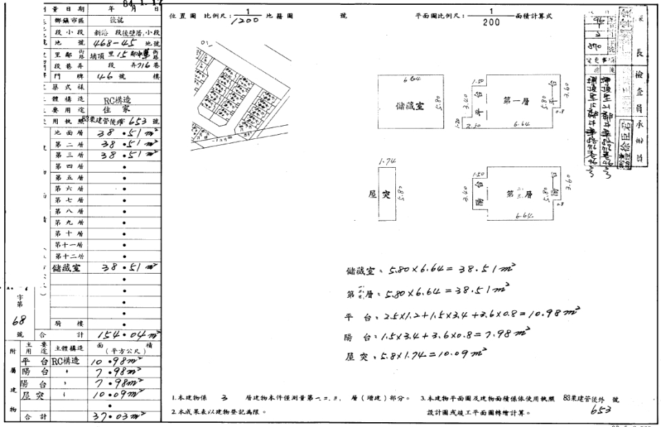
儲藏室:11.64
增 建 坪 數
10.52
土 地 坪 數
22.08
車 位 坪 數
車 位 屬 性
-
捷 運/火 車
房 屋 類 型
透天厝
結   構
RC
屋   齡
31
樓 層 別
全棟/3
房 屋 用 途
住家用
會員資訊

請登入會員查看

公告資料
拍 賣 地 點
臺灣苗栗地方法院
案   號
113年度司執字第27092號
拍 賣 範 圍
全部
拍 賣 原 因
清償債務
抵 押 權
抵押權拍定後塗銷
筆   錄
點交否:點交

使用情形
一、113年10月1日現場查封,地政人員指稱:查封之後龍鎮新港段後壁厝138建號建物1樓後方廚房、2樓後方有增建。債務人在場稱:查封建物目前為其與家人自住,無出租。查封建物無海砂屋、輻射屋、地震受創、火災受損、嚴重漏水,建物內無非自然死亡之情。
二、依本件暫編424建號建物登記謄本記載:部分使用鄰地,面積皆併入計算:第一層使用482之1地號為1.97平方公尺,二層使用482之1地號為1.97平方公尺。請應買人查明、注意。
三、依本件鑑價報告內容所載,查封建物現況有人居住使用中,建物維護情況尚可,土地西北側鄰約6米中華路716巷。

備註
一、上開不動產3宗合併拍賣,請投標人分別出價。
二、拍賣最低價額合計新台幣:4,672,000元,以總價最高者得標。
三、保證金新台幣:935,000元。
四、本件拍賣標的物包括主建物之附屬建物(從物)及附屬設施在內。
內容展開

本物件資訊如有遺漏,以法院公告為準。

地圖
公 告 底 價
467.2
開 標 結 果
拍定492.9999萬
  • 公告坪數
    68.28
  • 每坪單價
    6.84

    每坪單價以法院公告坪數概算,詳細拆算方式請洽專員。

  • 開 標 日
    2025/05/06 14:30
  • 拍  次
    3拍
  • 點交情形
    點交
  • 保 證 金
    93.5萬
聯 絡 人
丘先生

留 言