X
快速聯絡
諮詢專線:
線上諮詢:
或由專員為您服務,請留下
快速
聯絡

萬寶隆 北大特區

新北市三峽區大義路213號15樓之3

  • Uhomes
  • Uhomes
  • Uhomes
  • Uhomes
  • Uhomes
  • Uhomes
  • Uhomes
  • Uhomes
  • Uhomes
  • Uhomes
  • Uhomes
  • Uhomes
  • 相片
  • 地圖
  • 建物平面圖
  • 法院拍賣公告
公告底價
1,459.3萬
開標結果
拍定1924萬
  • 公告坪數
    55.05
  • 每坪單價
    26.50

    每坪單價以法院公告坪數概算,詳細拆算方式請洽專員。

  • 開 標 日
    2025/01/15 10:30
  • 拍  次
    3拍
  • 點交情形
    點交
  • 保 證 金
    291.9萬
聯 絡 人
吳經理
調整字級

物件資料
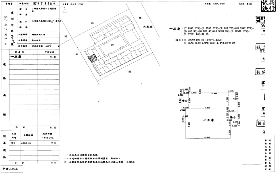
公 告 坪 數
55.05
主 建 坪 數
27.57
附 屬 坪 數
2.77
公 設 坪 數
13.80
其 他 坪 數
增 建 坪 數
土 地 坪 數
4.65
車 位 坪 數
10.91
車 位 屬 性
坡道平面
捷 運/火 車
房 屋 類 型
電梯大樓
結   構
RC
屋   齡
17
樓 層 別
15/18
房 屋 用 途
住家用
會員資訊

請登入會員查看

公告資料
拍 賣 地 點
金融拍賣中心
案   號
113板金職九字第380號
拍 賣 範 圍
全部
拍 賣 原 因
拍賣抵押物
抵 押 權
抵押權拍定後塗銷
筆   錄
使用情形
一、據法院於民國113年5月29日現場執行筆錄,查封物現為債務人與其家人居住,拍定後點交。
二、本件拍賣標的據債務人稱無影響交易價格之情事。

備註
一、上開不動產2宗合併拍賣,請投標人分別出價。
二、拍賣最低價額合計新台幣:壹仟肆佰伍拾玖萬參仟元,以總價最高者得標。
三、保證金新台幣:貳佰玖拾壹萬玖仟元。
四、本件拍賣標的如有建物,法院已盡量將調查所得之輻射屋、海砂屋、地震受創、嚴重漏水、火災受損、建物內有非自然死亡或其他足已影響交易之特殊情事等項,於使用情形欄載明,如使用情形欄未特別載明,即表示經法院以現場調查等方式予以調查後尚未發現有上開影響交易價格之情形。惟鑑於司法資源有限,縱經法院以通常方式予以調查,仍難保證絕無上情,此部分請投標人斟酌自行查明注意。
五、本件標的物原所有權人或使用人如有積欠工程受益費及水電、瓦斯或管理費等費用,應由拍定人自行與相關單位洽商解決始得辦理過戶,請應買人注意。
六、本件拍定後抵押權均塗銷。
內容展開

本物件資訊如有遺漏,以法院公告為準。

地圖
公 告 底 價
1,459.3
開 標 結 果
拍定1924萬
  • 公告坪數
    55.05
  • 每坪單價
    26.50

    每坪單價以法院公告坪數概算,詳細拆算方式請洽專員。

  • 開 標 日
    2025/01/15 10:30
  • 拍  次
    3拍
  • 點交情形
    點交
  • 保 證 金
    291.9萬
聯 絡 人
吳經理

留 言