X
快速聯絡
諮詢專線:
線上諮詢:
或由專員為您服務,請留下
快速
聯絡

新潤峰景苑 興仁花園夜市

桃園市八德區建德路269號15樓

  • Uhomes
  • Uhomes
  • Uhomes
  • Uhomes
  • Uhomes
  • Uhomes
  • Uhomes
  • Uhomes
  • Uhomes
  • Uhomes
  • Uhomes
  • Uhomes
  • 相片
  • 地圖
  • 建物平面圖
  • 法院拍賣公告
公告底價
1,190.4萬
開標結果
應買到期
  • 公告坪數
    48.33
  • 每坪單價
    24.63

    每坪單價以法院公告坪數概算,詳細拆算方式請洽專員。

  • 開 標 日
    2026/05/12
  • 拍  次
    應買到期日
  • 點交情形
    點交
  • 保 證 金
    238.1萬
聯 絡 人
徐專員
調整字級

物件資料
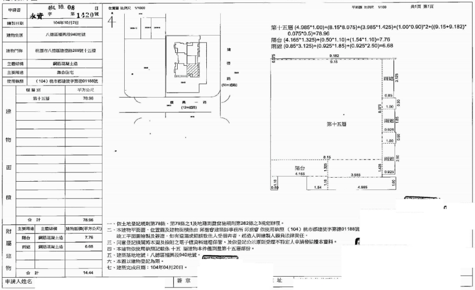
公 告 坪 數
48.33
主 建 坪 數
23.88
附 屬 坪 數
4.36
公 設 坪 數
13.29
其 他 坪 數
增 建 坪 數
土 地 坪 數
8.89
車 位 坪 數
6.80
車 位 屬 性
坡道平面
捷 運/火 車
桃捷綠線G01站
房 屋 類 型
電梯大樓
結   構
RC
屋   齡
11
樓 層 別
15/15
房 屋 用 途
住家用
會員資訊

請登入會員查看

公告資料
拍 賣 地 點
臺灣桃園地方法院
案   號
114年度司執助字第1933號1標
拍 賣 範 圍
全部
拍 賣 原 因
清償債務
抵 押 權
抵押權拍定後塗銷
筆   錄
點交否:部分點交、部分不點交
使用情形
一、據查封筆錄及債權人陳報,標的物現無人居住。拍定後按現況點交。
二、建物登記謄本記載本件標的2727建號含1個停車位,車位編號43號。實際上車位使用權之有無,其種類(汽車或機車)、數量、編號、現實占用情形,暨占有使用之法律關係等,應買人應查明自理,不得以此爭執,請求增減價金或撤銷拍定。又此部分因係屬建物共用部分,拍定後不點交。
備註
一、上開不動產2宗合併拍賣,徵求應買。
二、應買價額合計新台幣:11,904,000元,以總價最高者得標。如有多數人表示願意應買者,以應買意思表示最先到達者為優先,如不能分出時間先後者,則以抽籤決定其得買受之。
三、保證金新台幣:2,381,000元。
四、本件標的物所設定之抵押權於拍定後均塗銷。
五、依桃園市政府警察局八德分局函所載,本件拍賣標的於107年,有自殺之非自然死亡事件報案紀錄,請投標人注意。
六、本件拍賣之建物,經依形式外觀及通常調查所得是否為輻射屋、海砂屋、地震受創、嚴重漏水、火災受損、建物內有非自然死亡或其他足以影響交易之特殊情事等相關資訊,均已於附表載明;如有未記載之資訊,仍請投標人自行斟酌查明,且因拍賣物買受人就物之瑕疵無擔保請求權,故拍定後均不得以拍賣公告未記載而聲請減少價金或聲請撤銷拍定。
七、本件標的物原所有權人或使用人如有積欠工程受益費及水電、瓦斯費或管理費用,應由拍定人自行查明後與相關單位洽商解決,不得以此為由事後向本院提出爭執或聲明異議。
八、本院業將查詢所得資訊揭露於拍賣公告上,惟鑑於司法資源有限,且都市計劃之劃定或是否有辦理徵收及協議價購等事,可能伴隨社會經濟情事而迭有異動,應買人於投標前自應向相關主管機關查詢有無使用上或取得上限制之情事,於綜合考量相關風險後再行投標或應買,拍定後均不得以此為由聲請減少價金或聲請撤銷拍定。
九、刊登於新聞紙或網際網路之公告內容如與本院公告欄張貼之公告不符時,一律以本院公告欄張貼之拍賣公告內容為準。
內容展開

本物件資訊如有遺漏,以法院公告為準。

地圖
公 告 底 價
1,190.4
開 標 結 果
應買到期
  • 公告坪數
    48.33
  • 每坪單價
    24.63

    每坪單價以法院公告坪數概算,詳細拆算方式請洽專員。

  • 開 標 日
    2026/05/12
  • 拍  次
    應買到期日
  • 點交情形
    點交
  • 保 證 金
    238.1萬
聯 絡 人
徐專員

留 言